래미안 원페를라는 방배 6구역 일대에 지어질 아파트로 입지가 좋아 많은 사람들의 관심을 받고있는 단지입니다. 2024년 하반기 분양이 예정되어 있어 미리 분양가 및 입지를 알아둘 필요가 있습니다. 많은 분들의 시간 낭비를 줄여들이기 위해 핵심내용만을 전달하도록 하겠습니다.
👇👇사업현황 → 단위세대 평면도 메뉴에서 타입별 평면도를 보실 수 있습니다.👇👇
목차
1. 래미안 원페를라 개요
서초구 방배동 818-14일대를 재건축하여 삼성물산 시공으로 지어질 단지입니다. 해당 입지는 교통(7호선 내방역 역세권), 학군(초, 중, 고 도보 가능), 환경(상권 및 자연화경 인프라) 등이 갖추어진 최적의 입지로 실거주하기에 좋은 아파트입니다.


조합원수, 용적률, 건페율, 대지면적 등 좀 더 자세한 사업개요가 궁금하신 분들은 참조하여 주시기 바랍니다.
2. 추진경과
2015년 3월 조합설립인가를 득하였으며, 2017년 12월에 관리처분인가를 받아 2023년 하반기 분양을 앞두고 있습니다.(참고로 해당 단지는 2018년 1월 1일 이전에 관리처분인가를 신청하여 초과이익환수제 대상이 아닙니다)

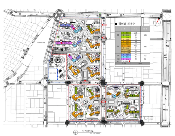
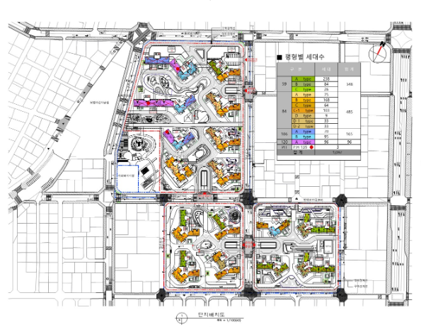
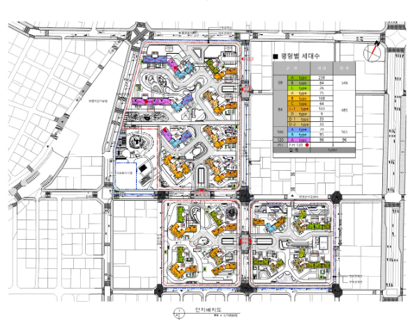
3. 단지배치도, 세대 및 평형, 평면도
지하 4층 ~ 지상 22층, 16개동, 총 1,097세대 중 465세대가 일반분양 물량입니다. 평형은 총 16개형으로 타입별로 다양하게 구성되어 있습니다. 59타입은 238세대, 59타입은 84세대, 59타입은 26세대, 84A타입은 75세대, 84B타입은 168세대, 84C타입은 64세대, 84C1타입은 103세대, 84D타입은 9세대, 84D1타입은 33세대, 84D2타입은 33세대, 106A타입은 70세대, 106B타입은 95세대, 120타입은 96세대, 139A타입은 1세대, 139B타입은 1세대, 139C타입은 1세대입니다.
👇👇사업현황 → 단위세대 평면도 메뉴에서 타입별 평면도를 보실 수 있습니다.👇👇
4. 분양가 예상
입주자 모집 공고문은 아직 안 나와 정확한 분양가는 알 수 없습니다. 다만, 괜찮은 분양가라고 예상할 수 있는 부분이 바로 분양가 상한제가 적용되는 단지라는 점입니다.(분상제 규정이 주변 단지 시세 대비 60~70% 수준에서 공급하도록 되어 있습니다.) 다만 인건비, 자재비, 건축비 인상으로 터무니 없이 낮은 수준의 분양가로는 책정되는 않을 것입니다. 평당 분양가가 약 5천만원 중, 후반대로 예상이 되긴 합니다.
(업데이트 : 2024.6.3.)
주변 비슷한 단지로 2013년 11월에 입주한 방배롯데캐슬아르떼(744세대)와 가격 비교를 하여 보겠습니다. 2024년 6월, 전용 84㎡ 기준(네이버 매물, 5층 이하, 탑층 제외) 현재 매물가격은 23억원, 평당가 6,970만원입니다. 향후 신축단지 예정인 래미안 원페를라와의 연식이 10년 이상 차이가 남에도 평당가는 약 1천 5백만원 이상 높습니다. 당연히 분양가 5천만원 중, 후반대 가격은 괜찮아 보입니다. 분명! 합리적인 분양가로 보입니다. 정확한 분양가는 전문가와 부동산상담과 공인중개사와의 상담이 필요합니다.
우리나라 재테크 자산관리 수단으로서 부동산은 가장 큰 비중을 차지합니다. 다만, 부동산 매매는 큰 금액의 거래가 있어 그 결정에 신중을 기하여야 합니다. 반드시 본인의 가용자금 계산이 필요합니다.
결정 전 주변 단지와의 비교분석을 통하여 자신만의 가격 기준을 갖는다면 좀 더 현명한 판단을 할 수 있을 것입니다. (일반 신축빌라, 빌라분양, 오피스텔, 전원주택과는 다르게 아파트는 가격과 입지간 비교가 가능한 자산입니다.)
5. 입지분석
✅ 교통 : S급 교통입지입니다. 지하철 7호선 내방역 도보 10분, 4, 7호선 총신대입구역 및 이수역을 도보 10분 이내로 이동할 수 있는 역세권 단지입니다. 지하철 이용 시, 강남역까지 약 15분, 광화문역까지 약 40분, 여의도역까지 약 20분 이내로 이동할 수 있습니다. 자가용 이용 시 올림픽대교, 동작대교, 반포대교, 강남순환도시고속도로, 경부고속도로를 통해 수도권 주요업무지구 및 지방도시들을 매우 편리하게 이동할 수 있습니다.
✅ 학군 : 단지 인근 초등학교는 방배초(416m), 중학교는 서문여중(388m), 방배중(1km), 이수중(1.2km), 고등학교는 서문여고(276m), 서초고(1.6km), 동덕여고(1.8km)가 있으며, 초, 중, 고등학교 모두 도보로 통학이 가능하여 아이 키우기에 좋은 단지입니다. 학원가는 단지 바로 옆, 총신대입구역 인근에 조성되어 도보로 이용이 가능합니다.

서초구 전체 중학교 학업성취도 및 특목고 진학률 내려받기
✅ 환경 : 하나로마트 이수점, 이마트 이수점, 지하철 역사 주변 각종 상권 등 다양한 상업 인프라가 잘 조성되어 있으며, 뒷벌공원, 현충공원, 근린공원이 있어 쾌적한 자연환경도 누릴 수 있습니다.
6. 커뮤니티 및 편의시설
단지 내 작은도서관, 실내 골프연습장, GX룸, 시니어클럽 등 다양한 주민 편의시설이 들어올 예정입니다.

7. 청약 당첨 가능성 확인하기
👇👇청약가점을 모의로 입력하고 당첨 가능성도 확인하실 수 있습니다.👇👇
8. 그 밖에 최근 분양 단지
잠실 래미안 아이파크 분양가, 평면도, 입지 분석 (총정리)
잠실 래민안 아이파크는 진주아파트를 재정비하여 건설될 대단지 아파트로 잠실에서 18년 만에 나올 신축 분양 아파트로 2023년 하반기에 분양할 예정입니다. 쿼드역세권, 각종 편의시설, 주요업
easyfasthand.com
래미안 원펜타스 분양가, 평면도, 입지 분석(총정리)
래미안 원펜타스는 신반포 15차 재건축으로 2023년 하반기 분양 예정 단지입니다. 최고의 입지로 많은 사람들이 관심을 갖고 있는 단지이기도 하여, 청약 전 미리 분양가, 평면도, 입지에 대해 알
easyfasthand.com
방배5구역 디에이치방배 분양가, 평면도, 입지분석
디에이치방배는 방배5구역을 재건축하여 지어질 단지로 올해 하반기 분양을 앞두고 있습니다. 서초구의 전통적 강자이며, 교통 입지가 매우 훌륭하여 많은 사람들이 관심을 가지고 있는 단지이
easyfasthand.com



