디에이치방배는 방배5구역을 재건축하여 지어질 단지로 올해 하반기 분양을 앞두고 있습니다. 서초구의 전통적 강자이며, 교통 입지가 매우 훌륭하여 많은 사람들이 관심을 가지고 있는 단지이기도 합니다. 누구보다도 빠르게 해당 단지의 입지와 가치를 안다면, 분양 시 현명한 판단을 할 수 있을 것입니다. 시간 낭비를 줄여드리기 위해, 핵심사항만 추려서 총정리하였습니다.

목차
1. 디에이치방배 개요

서초구 방배동 946-8번지 일대를 재건축 주택정비사업으로 현대건설이 시공하는 단지입니다. 방대동에서 진행하는 재건축 사업 중 최대 규모인 총 3,065세대로 분양할 예정이며, 단지 인근에 4개의 지하철 노선이 있어 교통이 매우 편리합니다. 또한, 도보 통학이 가능한 초, 중, 고등학교가 있으며, 각종 편의시설과 방배근린공원이 인접해 있어 실거주하기 좋은 아파트입니다. 무엇보다도 방배2동 일대 주택정비사업으로 탈바꿈하게 될 예정으로 향후 주거가치는 훨씬 좋아질 예정입니다.


토지 소유자 수, 조합원 수, 건축면적 등 좀 더 자세한 사업개요가 궁금하신 분들은 참고하여 주시기 바랍니다.
2. 추진경과
2012년 5울에 조합설립 인가를 2016년 7월에 관리처분 인가를, 2020년 8월에 철거를 하였고, 현재는 분양을 예정하고 있습니다. * 2016년에 관리처분인가를 득하여 초과이익환수제가 적용되지 않는 단지입니다.(재초환 대상은 2018년 1월 1일 이후 관처를 신청한 단지임)

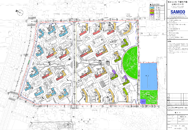
3. 단지배치도, 세대 및 평형, 평면도
- 서초구 방배동 946-8번지 소재, 지하 4층 ~ 지상 33층, 29개동, 총 3,065세대로 조합웝 물량은 1,522세대, 일반분양 물량은 1,244세대입니다.(조합원 물량을 제외하더라도 일반분양 물량이 1천 세대가 넘어 괜찮아 보입니다.)
- 평형은 타입별로 총 15개로 구성되어 있어으며, 101A는 553세대, 101B는 63세대, 114A는 190세대, 114B는 113세대, 143은 55세대, 164P1은 4세대, 164P2는 6세대, 164P3은 2세대, 175P는 4세대, 59A는 527세대, 59B는 292세대, 59C는 82세대, 84A는 870세대, 84B는 190세대, 84C는 114세대입니다. 전용 59㎡ 215가구, 84㎡ 956가구, 전용 101㎡ 58가구, 전용 114㎡ 15 가구로 , 국평인 84㎡이 세대수가 가장 많아 주력으로 보입니다.
4. 분양가 예상
- 아직 입주자모집공고문이 안 나와 정확한 분양가는 산출할 수는 없지만, 잠정적으로 조합에서 추계한 일반분양가 평당 5,100만원대로, 국평인 전용면적 84㎡ 기준, 17억원 이상 분양가가 책정될 거 같아 보입니다. 분양가 상한제가 적용되는 단지이지만 인건비, 자재비 상승으로 분양가가 더 높아질 가능성도 큽니다.
- 전통적으로 고급 주택단지들이 모여있는 방배동은 서초구에서 가장 비싼 동이었지만, 2000년대 중반 반포동 일대가 재건축 주택정비사업이 진행되면서, 반포동이 앞서게 되었습니다.
- 디에치방배와 가장 인접한 방배롯데캐슬아르떼(도보 약 1~2분)의 33평(전용 84㎡) 기준 현재(2023년 5월 기준) 매물시세는 23억원으로 평당 약 6,970만원입니다. 방배롯데캐슬아르떼는 2013년식 지어진 단지로, 디에치방배와 연식이 10년 이상 차이가 나게됩니다. 조합원 일반분양 책정가인 5,100만원과 비교하면 평당가는 약 1,800만원 정도 낮습니다. 인접단지와 비교 시 안전마진은 6억원 내외로 보입니다.(물론 정확한 분양가가 나와봐야 알 수 있습니다. 아무리 안전마진이 있더라도 절대가는 비싸보입니다.)
- 무엇보다 먼저 우리의 가용가금을 먼저 알아보셔야 현명한 판단을 하실 수 있습니다.
- 뿐만아니라 주변에 인근 단지들과도 정확한 가격 비교 분석이 필요합니다.
5. 입지분석

- 교통 : 교통은 S급으로 매우 좋습니다. 지하철 4개의 노선을 도보로 이용할 수 있는 쿼트러플 초역세권 단지입니다.(지하철 4호선의 이수역과 사당역, 2호선의 이수역과 내방역, 7호선의 이수역과 내방역입니다.) 지하철 이용 시, 강남역까지는 약 10분, 광화문역까지는 약 30분, 여의도역까지는 약 20분 이내로 이동할 수 있으며, 자차 이용 시 강남순환고속도로, 올림픽대로, 동작대교, 반포대교, 경부고속도로를 통하여 주요업무지구와 전국으로 쉽게 이동할 수 있습니다.
- 학군 : 단지 이근의 초등학교는 방배초등학교(약 230m), 중학교는 이수중학교(약 200m), 고등학교는 서문여고, 동덕여고, 경문고가 있습니다. 학원가는 내방역 인근, 이수역 인근에 다수 형성되어 있습니다.

- 환경 : 이마트 하나로마트, 각종 상업 편시시설 등이 다양하게 갖추어져 있으며, 단지 인근에는 도구머리공원, 방배근린공원, 서리풀공원 매봉재산이 있어 쾌적한 자연환경도 누릴 수 있습니다.
6. 커뮤니티 및 편의시설
좋은 입지와 고급 단지에 걸맞게 주민운동시설, 작은도서관, 경로당, 어린이집, 놀이터, 피트니스 등 다양한 주민편의시설이 들어올 예정입니다.

7. 청약 당첨 가능성 확인하기
분양 전 미리 모의로 청약당첨 가능성도 알아 보실 수 있습니다.

8. 그 밖에 최근 분양 단지
힐스테이트 e편한세상 문정 분양가, 평면도, 입지 분석
힐스테이트 e편한세상 문정은 2020년 이후 오랜만에 송파구에서 분양된는 대규모 단지(1,265세대)로 많은 사람들이 관심을 가지고 있는 아파트입니다. 분양이(7월 예정) 임박하고 있어 해당 단지에
easyfasthand.com
청담르엘 분양가, 평면도, 입지 분석
강남구 청담동 최고의 입지에 소재한 청담르엘이 분양(2023년 6월 예정)이 임박하고 있습니다. 교통, 학군, 환경, 호재 등 입지면에서 어느 하나 빠지지 않는 단지로서 많은 사람들의 관심을 한 몸
easyfasthand.com
광명자이더샵포레나 분양가, 청약, 평면도, 입지 분석
서울 최인접지에 위치하고 있는 광명시에 대단지 신축 아파트인 광명자이더샵포레나가 곧 분양할 예정인데요, 부동산 침체장임에도 교통, 학군, 환경, 일자리 등 입지가 좋아 많은 사람들이 관
easyfasthand.com
시화MTV 푸르지오 디오션 분양가, 평면도, 입지 분석
최첨단의 해양과 레저 복합도시인 시화 MTV 소재 내시화 MTV 푸르지오 디오션의 청약이 임박하고 있습니다. 2023년 시흥시의 첫 분상제 적용단지로(합리적인 분양가!) 많은 사람들이 관심을 갖고
easyfasthand.com
새절역 두산위브 트레지움 분양가, 평면도, 입지 분석
지하철 6호선 새절역 인근에 위치한 새절역두산위브트레지움의 청약신청이 다가고 있습니다. 특별공급 청약은 5월 15일(월)에, 1순위 일반공급 청약은 5월 16일(화)에 진행될 예정으로 신청이 임
easyfasthand.com




